Fachwerk-Romantik Am Dom
Preview only — see all hotel photos
See all 28 photos
Hotel a térképen
Fachwerk-Romantik Am Dom
A Fachwerk-Romantik Am Dom Fulda apartman kényelmes közelségben van olyan városi látnivalókhoz, mint az 5 percnyi sétára található Stadtpfarrkirche. Az apartman az egész ingatlanban Wi-Fi-t biztosít.
A Friedhof Frauenberg körülbelül 1 km-re, míg a Stadtschloss City Palace Fulda körülbelül 400 méterre helyezkedik el. Fulda központja 5 perc sétával elérhető. A Fulda City Palace továbbá csaknem 10 percnyi sétára van a Fachwerk-Romantik Am Dom apartman területétől.
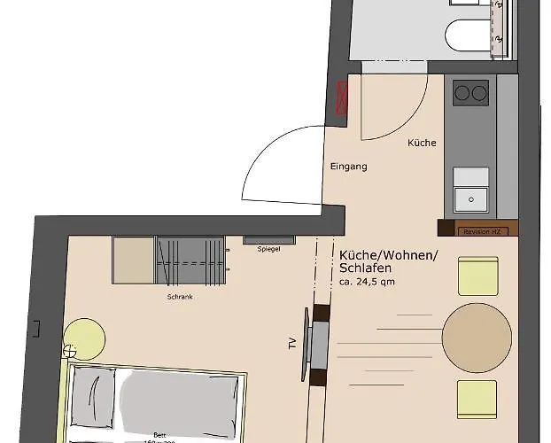
Az ingatlan magába foglal ülősarkot, nappalit és konyhát mosógéppel és hangszigetelt falakkal a maximális kényelem érdekében. A Fachwerk-Romantik Am Dom apartman vendégei élvezhetik a hajszárítóval és törölközőkkel felszerelt fürdőszoba kényelmét. Továbbá külön WC, mosógép és zuhanyzó szintén elérhető.
Az apartman olyan önellátási lehetőségek mellett, mint a teljesen felszerelt konyha, a vendégek számára étkezőt kínál, ahol élvezhetik ételeiket. A Frankfurt (FRA-Frankfurt nemzetkozi ) repülőtér 115 km-re, a Robert-Kircher-Strasse buszpályaudvar pedig lépésre található az apartman területétől.
Felszereltség
Főbb kényelmek
- Wifi
- Sporttevékenységek
- Háziállat nem engedélyezett
Szolgáltatások
- Nemdohányzó
- Wi-Fi
- VIP be-/kijelentkezés
- Háziállat nem engedélyezett
- Poggyászmegőrzés
- Füstérzékelők
- Tűzoltó készülékek
- Elektromos vízforraló
- Szárító
- Konyhaedények
- Büfé
- Túrázás
- Üdvözlő ital
- Fűtés
- Minibár
- Ülősarok
- Tea és kávéfőző
- Étkezőasztal
- Mosógép
- LCD TV
- Táblajátékok
- Parketta
Irányelv
Térkép
Helyi látnivalók
Repülőterek
- Frankfurt (FRA-Frankfurt nemzetkozi repuloter) (114 km)
Értékelések
100% -ban ellenőrzött vélemények